Loại sản phẩm: Trần nhôm
Hãng sản xuất: Alcorest
Tình trạng: Hết hàng
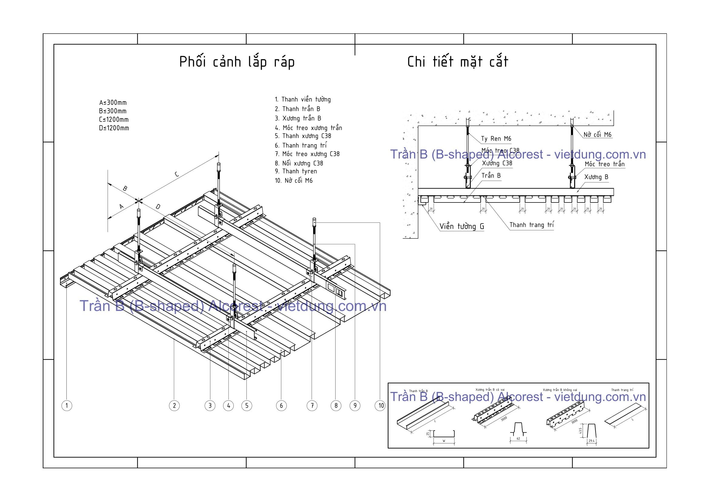
Là hệ trần dạng thanh có khe hở thoáng giữa các thanh trần có thể được lắp đan xen các màu sắc, kích thước để tạo sự độc đáo cho không gian trần.
Quy cách tiêu chuẩn: B30, B80, B130, B180 x chiều dài theo yêu cầu
Độ dày nhôm: 0.5, 0.6 mm
